DraftSight R2026x FD01 的最新功能交付已到,包含了更无缝的数据传输,以及多项新的尺寸工具更新。让我们在下面深入看看。
协作与数据管理
批量上传:文件夹到书签结构同步——在迁移到云端的同时,保持现有工作流程。
当你使用批量保存功能将文件夹保存到 3DEXPERIENCE 平台时,它会保留层级结构,包括 3DEXPERIENCE 书签编辑器中的子文件夹。当你在“批量保存到3D体验”对话框中添加书签时,它会自动创建一个复制Windows文件夹结构的书签。
通过在指定的书签中镜像本地目录结构,上传过程变得可预测且无需干预,无需在传输后重新组织文件。
注意:仅适用于DraftSight高级版、机械版和协作设计师版,适用于DraftSight。

尺寸设计
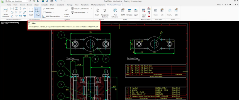
线性、纵线和角尺寸的智能对齐——消除手动尺寸调整。
DraftSight有一个新的“对齐维度”命令,可以让你将线性、坐标或角向的维度与选定的基底维度对齐。你可以用最小的调整制作更简洁、更易读的技术图纸,这样你可以专注于设计的准确性,同时系统负责技术注释的一致组织。
注意:仅适用于DraftSight机械版。

动态维度分割——优化注释工作流程并确保文档一致性。
DraftSight此次更新还新增了一个“插入维度”命令,使你能够将长维度线或角度跨度拆分为可读的段,而无需手动重建。当你拆分维度时,应用会从原维度的第二条延伸线创建新的维度。新维度继承了公差、拟合度和层分配等属性。
如果你需要细分尺寸以适应加工或制造需求,这很方便。该工具自动化属性继承,确保新段保持原始的公差、配合和层分配,确保文档完全一致。
注意:仅适用于DraftSight机械版

新的幂级维度表示面板——更快地对维度应用注释。
利用表示面板自动进行技术注释,即时将标准化的视觉标签——如参考标签、理论精确标签和检查指标——应用于尺寸。这消除了手动覆盖文本,并通过将设计意图直接嵌入尺寸属性,确保符合机械制图标准。
注意:仅适用于DraftSight机械版

想了解DraftSight这些改进的实际应用,请查看代理商智诚科技ICT的“最新更新”页面。想了解更多最新改进,请查看DraftSight 2026的十大功能,并持续关注全年更多功能性发布。了解DraftSight最新动态和价格拨打客服热线:400-886-6353
获取正版软件免费试用资格,有任何疑问拨咨询热线:400-886-6353或 联系在线客服
未解决你的问题?请到「问答社区」反馈你遇到的问题,专业工程师为您解答!